Portale | Rahmenportale | Halbportale | Gittertürme

Fertigung von Portal- und Überkopfschildkonstruktionen nach Kundendokumentation

Signal Sombor fertigt Stahlportale und Überkopftragkonstruktionen für die Montage von Verkehrsbeschilderung. Jedes Portal, jeder Rahmen und jede Tragkonstruktion wird streng nach der vom Kunden gelieferten Projektdokumentation hergestellt, die von zertifizierten Verkehrs- und Bauingenieuren erstellt wurde. Die Produktion konzentriert sich auf Tragfähigkeit, Normenkonformität und langfristige Haltbarkeit unter anspruchsvollen Außenbedingungen.

Von Ihnen geplant – von Signal Sombor gefertigt

Unser Team fertigt jede Konstruktion exakt nach der bereitgestellten technischen Dokumentation. Alle Baumaße, Lastangaben, Fundament- und Ankerplattendetails, Materialvorgaben, Schweißverfahren und Korrosionsschutzsysteme werden präzise umgesetzt. Jedes Portal, jeder Ausleger und jedes Halbportal wird so konstruiert, dass es die festgelegten technischen Normen und vorgegebenen Lastfälle für Verkehrsinfrastruktur erfüllt.

Ihre Dokumentation bestimmt die Konstruktion

Die Produktion von Signal folgt der vom Kunden gelieferten 2D/3D-CAD- und BIM-Dokumentation, einschließlich technischer Zeichnungen, Lastberechnungen, Materialspezifikationen und Konstruktionsdetails. Die Einhaltung der EN ISO 3834-2 Schweißnorm und der Zertifizierungen EN 1090-1 / EN 1090-2 gewährleistet, dass jede Schweißnaht und jede Bauteilbaugruppe europäischen Qualitätsstandards entspricht.

Arten von Konstruktionen, die wir fertigen

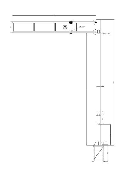
Signal fertigt ein umfassendes Sortiment an Stahltragkonstruktionen für Autobahnen, Stadtstraßen und regionale Verkehrsnetze. Das Portfolio umfasst Vollspann-Portalgerüste, Halbportale, asymmetrische Auslegerkonstruktionen, T-Portale und Gittertürme. Jede Konstruktion wird nach kundenspezifischer Projektdokumentation gefertigt, die Lastklassen, Wind- und Erdbebenberechnungen, Sicherheitsanforderungen und standortspezifische Einbauparameter berücksichtigt.

Dieser Ansatz gewährleistet, dass alle Portale, Ausleger, Halbportale, T-Portale und Gittertürme höchste Anforderungen an Festigkeit, Stabilität und Langlebigkeit erfüllen und den zertifizierten Fertigungsstandards EN 1090-1, EN 1090-2 und EN ISO 3834-2 entsprechen.

Portalgerüste (Zweisäulen)

Vollspann-Stahlportal-Konstruktionen für mehrspurige Autobahnen und hochbelastete Straßen. Entwickelt für hohe Tragfähigkeit und Stabilität, dienen sie zur Aufnahme großformatiger Verkehrsbeschilderung, Wechselverkehrszeichenanlagen und Verkehrssteuerungseinrichtungen und werden nach EN 1090-2 zertifizierten Verfahren gefertigt.

Auslegerkonstruktionen (einseitig)

Auslegertragkonstruktionen kommen zum Einsatz, wenn ein Vollspann-Portal nicht erforderlich oder nicht praktikabel ist. Sie bieten zuverlässige Tragfähigkeit für montierte Verkehrsbeschilderung bei gleichzeitig reduziertem Platzbedarf, kleineren Fundamenten und geringerem Montageaufwand.


Halbportal-Konfigurationen

Halbportale sind versetzte Einsäulen-Portale, die nur einen Teil der Fahrbahn überspannen, wenn zweisäulige Vollportale aufgrund von Platz- oder Fundamentbeschränkungen nicht möglich sind. Diese Bauform erhält die erforderliche Tragfähigkeit bei gleichzeitig optimiertem Materialeinsatz, kleineren Fundamenten und einfacherer Montage.

Gittertürme

Signal fertigt Gittertürme für Verkehrsbeschilderung nach kundenspezifischer Projektdokumentation und statischen Berechnungen. Neben mehreren Standardmodellen, die regelmäßig produziert werden, entstehen die meisten Gittertürme als Sonderanfertigungen, die exakt auf Lasten, Windwiderstand und örtliche Gegebenheiten abgestimmt sind. Alle Konstruktionen entsprechen den zertifizierten Fertigungsstandards EN 1090-2 und EN ISO 3834-2.

Sonderanfertigungen

Von ungewöhnlichen Portalen und Überkopfschildträgern bis hin zu großen Gitterturm-Konstruktionen – wir liefern vollständig kundenspezifische Stahllösungen für jedes Projekt. Auf Basis der von unseren Auftraggebern gelieferten technischen Zeichnungen und Spezifikationen fertigen wir Sonderweiten, Geometrien und Verbindungsdetaillierungen – selbstverständlich mit voller Einhaltung von EN ISO 3834-2 Schweißvorgaben und EN 1090-Konformität.

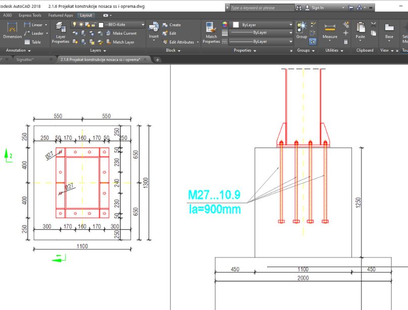
Zubehörkomponenten: Portalhalter, Ankerplatten & Stahlkörbe

Neben den Haupttragkonstruktionen fertigt Signal alle erforderlichen Zubehörteile für eine sichere und dauerhafte Montage. Dazu gehören Portalhalter und Schildträger für jede beliebige Tafelgröße, präzise lasergeschnittene Ankerplatten für sichere Fundamentverankerung sowie Stahlbewehrungskörbe für Betonfundamente. Jede Komponente wird projektbezogen konstruiert und entspricht den Normen EN 1090-2 und EN ISO 3834-2.

Fertigungsleistungen

Unsere Produktionsstätte ist mit modernster Technik ausgestattet, die eine hochpräzise Fertigung aller Bauteile ermöglicht – von Ankerplatten und Basissäulen bis hin zu Vollspann-Trägern.

Faserlaser-Schneiden (Blech & Rohre)

Wir betreiben zwei leistungsstarke Faserlasersysteme: einen 12-kW-Blechlaser für Ankerplatten, Knotenbleche, Verstärkungen und Halter sowie einen 3-kW-Rohr- und Profil-Laser für Säulen, Träger, Tragelemente und Verstärkungen. Diese Doppelausstattung sorgt für höchste Schnittpräzision und perfekte Passgenauigkeit aller Portal-Komponenten bei der Montage.

Zertifiziertes Schweißen und Baugruppenmontage

Unsere Fertigungsprozesse entsprechen den Anforderungen der Zertifizierungen EN ISO 3834-2 sowie EN 1090-1 / EN 1090-2 (EXC2). Alle tragenden Schweißnähte werden nach genehmigten Schweißanweisungen (WPS) ausgeführt, die durch Verfahrensprüfungen (WPQR) gemäß EN 1090-2 nachgewiesen sind. Geschweißt wird mit den gängigsten industriellen Verfahren – MIG/MAG (135/136), WIG (141) und E-Hand (111) – je nach Werkstoff, Nahtgeometrie und Lastanforderung. Sämtliche Schweißarbeiten führen ausschließlich zertifizierte Schweißer mit gültiger Qualifikation nach ISO 9606-1 durch – für alle erforderlichen Werkstoffe, Nahtarten und Schweißpositionen. Dies garantiert durchgängige Qualität, lückenlose Rückverfolgbarkeit und höchste Tragsicherheit aller Bauteile – von Säulen, Trägern und Tragelementen über Ankerplatten und Rohre bis hin zu Gitterturm-Segmenten.

Säulen- & Trägerfertigung

Wir produzieren tragende Bauteile wie Rundstahl-Säulen, Rechteckprofile und projektbezogene Sonderträger.

Montage der Mittelsegmente

Hauptspannweiten, Verstärkungselemente und Querträger werden unter kontrollierten Werkstattbedingungen vormontiert, um höchste Präzision zu gewährleisten.

Oberflächenschutz

Alle Stahlbauteile werden im bewährten Partnerbetrieb Metalcinkara in Inđija feuerverzinkt – eine Zusammenarbeit, die seit über zehn Jahren besteht. Der Prozess erfolgt nach EN ISO 1461 und bietet langfristigen Korrosionsschutz auch unter extremen Witterungsbedingungen.

Transport & Lieferung

SIGNAL organisiert Lieferungen quer durch Europa in Zusammenarbeit mit lizenzierten internationalen Speditionen. Zu unseren verlässlichsten Partnern zählt Adamsped , eines der führenden Logistikunternehmen Serbiens. Sendungen werden entweder direkt in unserem Werk verladen oder an ein Zollterminal übergeben, wo die Spediteure die Ausfuhrabfertigung und den Weitertransport übernehmen. Mit regelmäßigen Lieferungen in die Schweiz und bewährter Erfahrung in weiteren EU-Ländern garantiert SIGNAL sichere, dokumentierte und termingerechte Anlieferung zertifizierter Stahlbauteile.

Alle Portal- und Halbportal-Konstruktionen werden modular in Abschnitten gefertigt. Selbst bei großen Spannweiten sind die Einzelteile auf maximal 6 Meter begrenzt, sodass das längste Transportstück in der Regel eine Säule ist.

Mit Standard-Sattelaufliegern von 13,6 m Länge erfolgt der Transport meist ohne Großraumgenehmigung – effizient, kostengünstig und zuverlässig quer durch Europa. Wir unterstützen alle logistischen Anforderungen: professionelle Verpackung, sicheres Verladen und vollständige Transportdokumentation für Exportpartner.

Installation

SIGNAL bietet die vollständige Montage von Portal-, Gittermast-, Halbportal- und Auslegerkonstruktionen für Verkehrszeichen in ganz Europa, ausschließlich ausgeführt durch unsere eigenen zertifizierten Teams und mit firmeneigenem Equipment. Mit umfassender Erfahrung in der Installation von großformatigen Richtungs- und Informationsschildern sowie Überkopfzeichen übernimmt unser Unternehmen die komplette Ausführung vor Ort – von der Fundamentvorbereitung und der strukturellen Montage bis hin zur Endausrichtung und Inbetriebnahme.

Unsere Installationskapazitäten umfassen:

  • Spezialisierte Transportfahrzeuge für Konstruktionen, Geräte und Personal
  • Kranfahrzeuge für das Heben und Positionieren großer Stahlkonstruktionen
  • Bagger und Erdbaumaschinen für die Fundamentvorbereitung
  • Professionelles Montageequipment für Arbeiten in großer Höhe
  • Zertifiziertes Schweiß- und Montagepersonal

Sämtliche Arbeiten werden gemäß den geltenden europäischen Normen und Projektspezifikationen durchgeführt, unterstützt durch unser nach EN 12899-1, EN 1090-1 und EN ISO 3834-2 zertifiziertes Produktionssystem.

SIGNAL verfügt über umfangreiche Erfahrung in der Montage von Portalen, Gittermasten, Halbportalen und Auslegerkonstruktionen, einschließlich der Installation großformatiger Richtungs- und Informationsschilder sowie Überkopfzeichen in Serbien und Montenegro, und ist vollständig ausgestattet und rechtlich qualifiziert, um Installationsprojekte in ganz Europa durchzuführen.

Business hours 7:00am — 3:00pm